︎
MW
Architect
Project
About
Contact
Mengru
Wang
About
︎
/
︎
/
︎
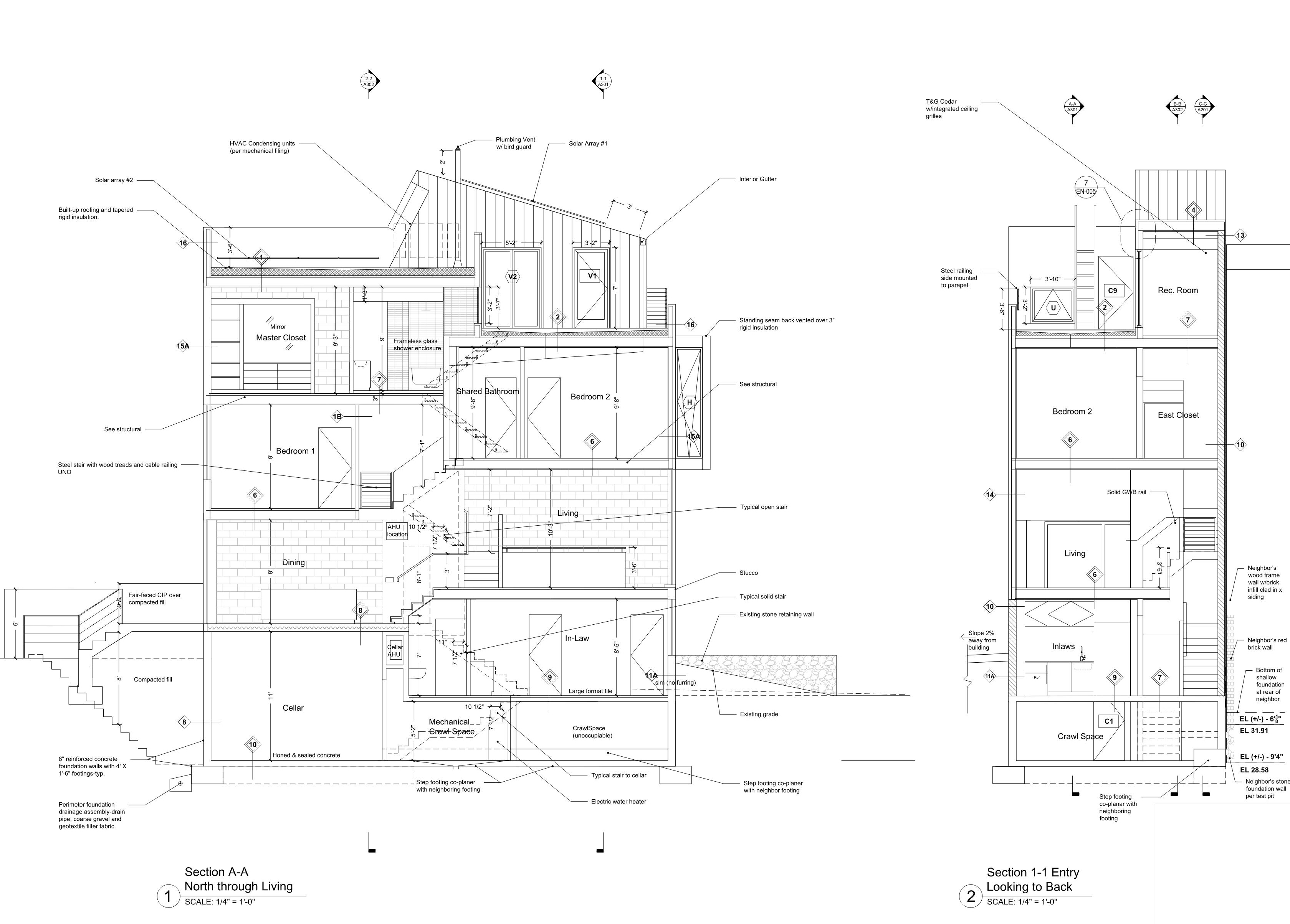
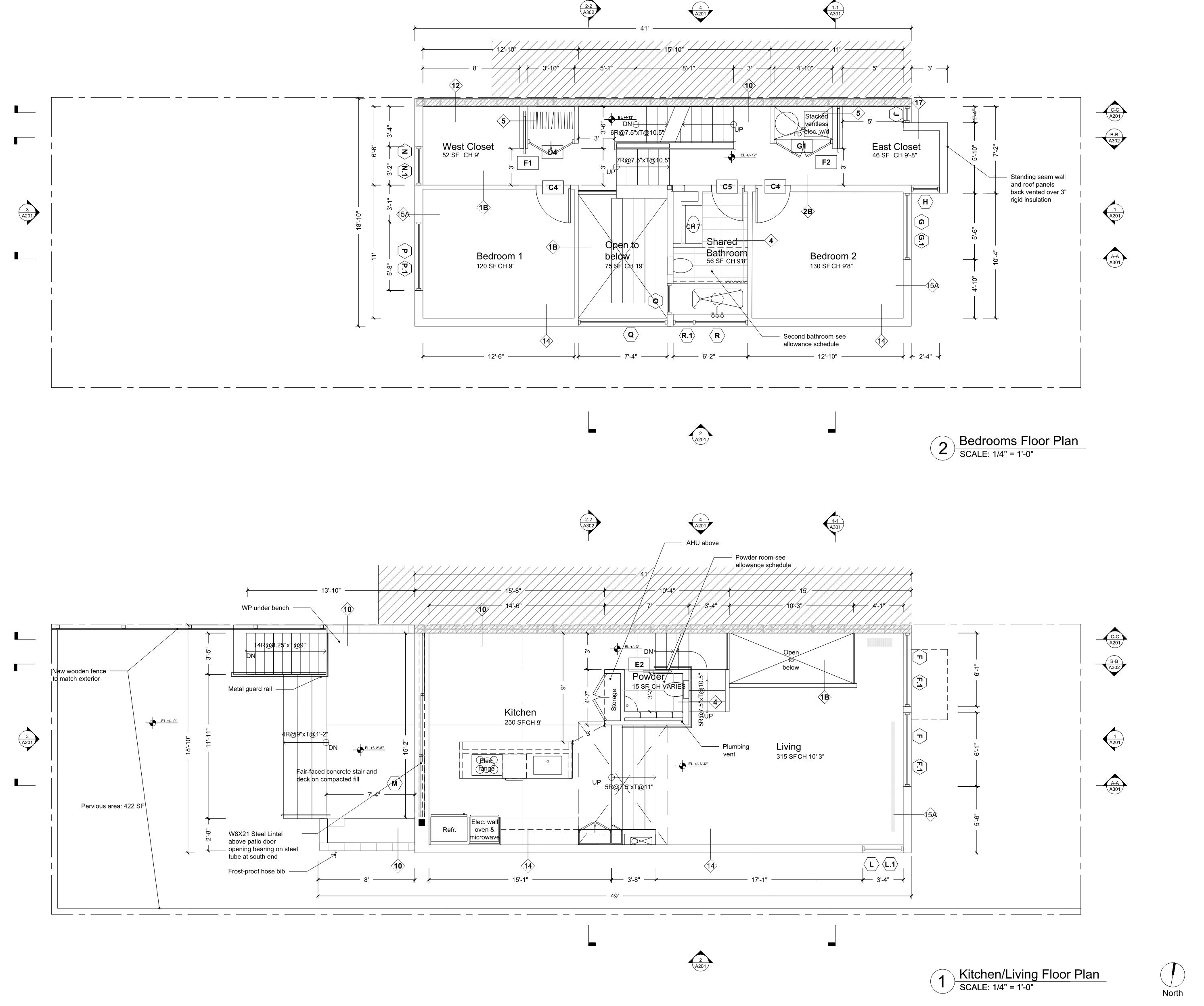
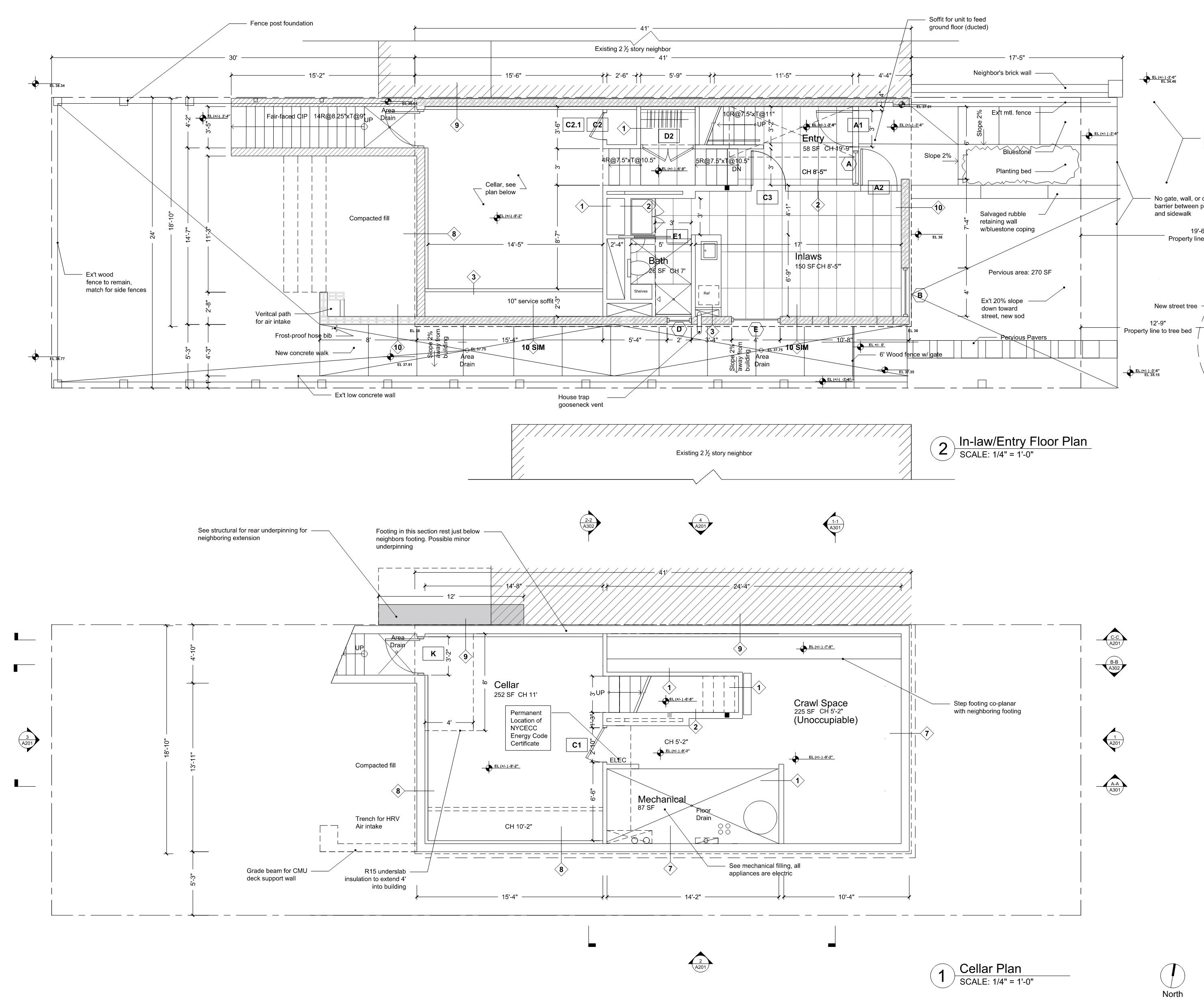
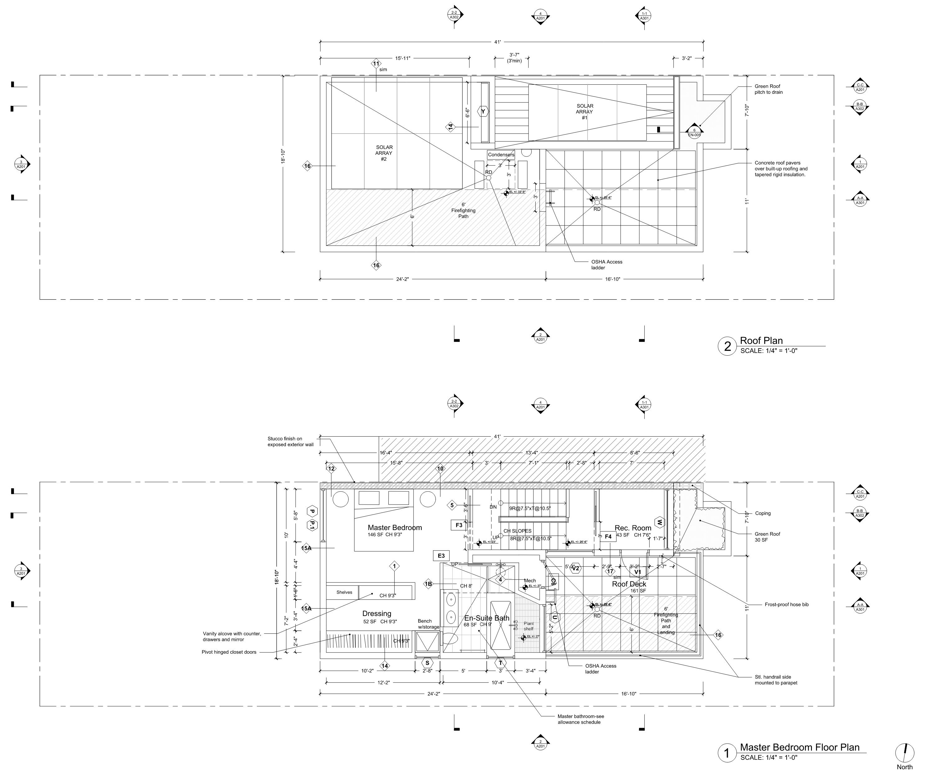
Offset House
Location: Brooklyn, New York, U.S.A
Size: 2,400 SF
Status: Design Development to Construction Document at Noroof. Under construction
︎
/
︎
/ ︎
/
︎