︎
MW
Architect
Project
About
Contact
Mengru
Wang
About
︎
/
︎
/
︎
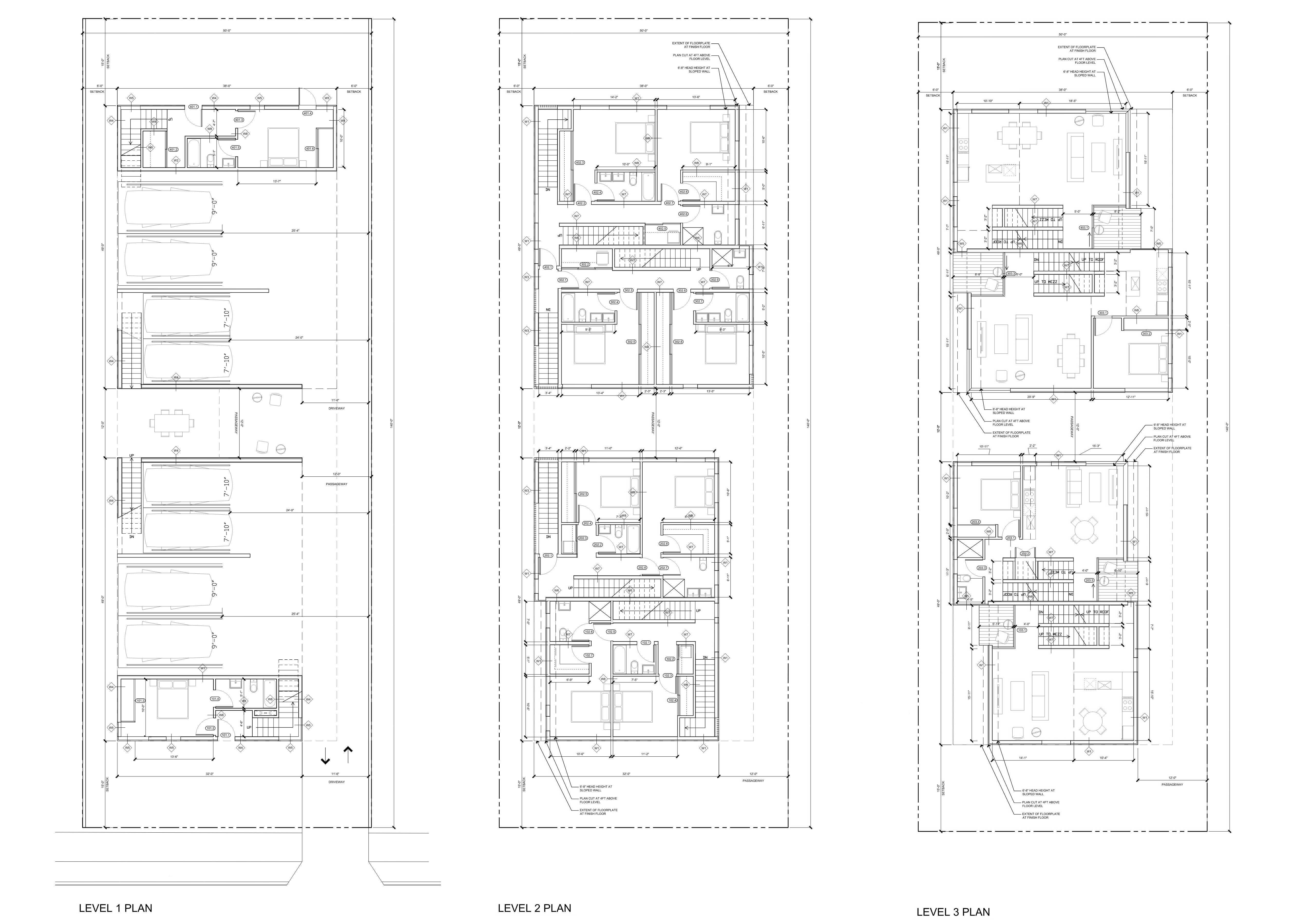
TWO DUPLEXES
Location: Los Angeles, CA, U.S.A
Size: 7600 SF, 4 Units
Status: Facade design at LOHA
︎
/
︎
/ ︎
/
︎